MAISON F.

69620 Frontenas

Année : 2021
Client  : Privé
Mission : ESQ/APS/APD
Surface de plancher : 145 m2
Description du projet :
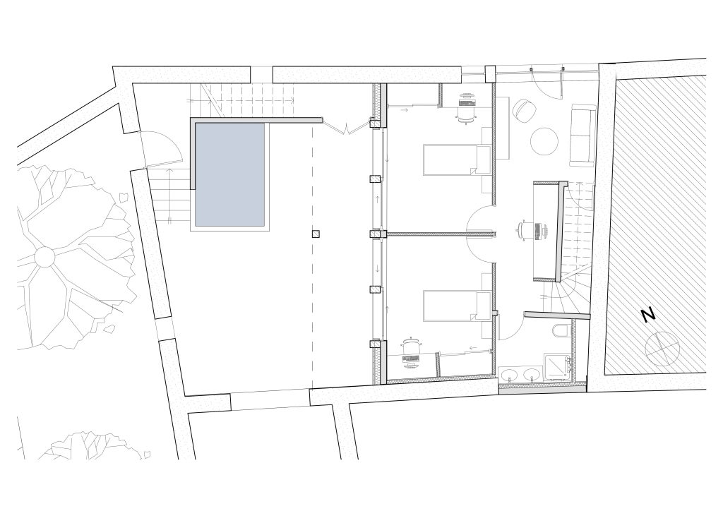
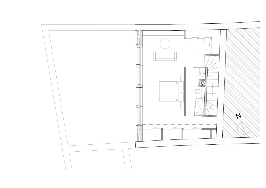
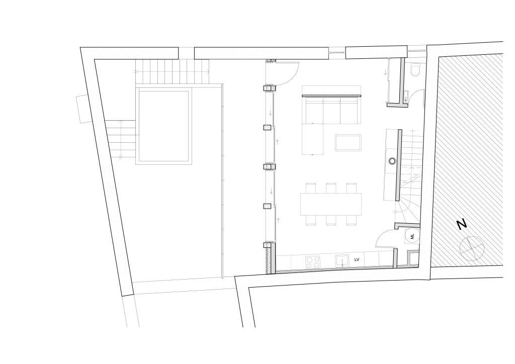
Situé au cœur du Beaujolais, dans le village de Frontenas, ce projet architectural tire parti du patrimoine local des pierres dorées en réhabilitant un site en ruines. Le concept consiste à préserver les murs en pierre existants pour intégrer une structure habitable de trois niveaux. L’emprise des murs d’origine permet également la création d’un patio, autour duquel s’articulent un jardin, un escalier d’accès et une petite piscine, formant ainsi un espace extérieur à la fois protégé et intime.
La construction repose sur des planchers en maçonnerie pour assurer la stabilité des murs en pierre, et intègre une façade en ossature bois. Cette façade est conçue avec un remplissage central en vitrage pour maximiser la lumière naturelle, tandis que les sections latérales sont isolées avec un mélange chaux-chanvre, recouvert d’un enduit à la chaux. Les menuiseries en bois ajoutent une touche cohérente avec l’esthétique traditionnelle

Retour en haut