69480 Anse
Année : 2021
Client : Privé
Mission : ESQ/APS/APD
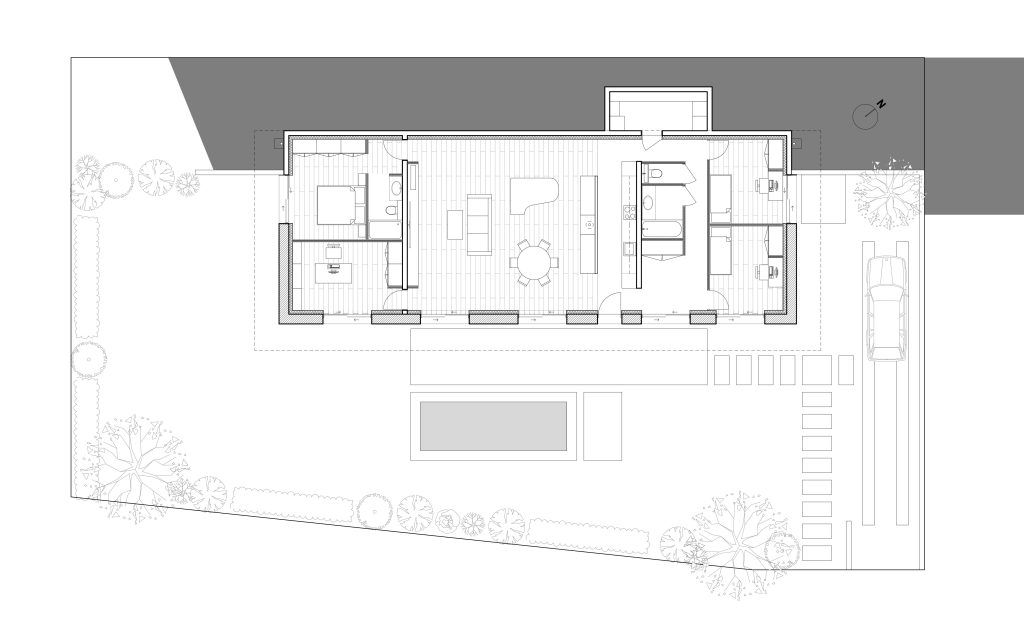
Surface de plancher : 140 m2
Description du projet :
Le projet s’inscrit dans une démarche de construction moderne tout en s’inspirant des techniques ancestrales de construction en terre crue, ou pisé, typiques de la région. Historiquement, le pisé a été utilisé dans cette région, conférant aux constructions un caractère authentique et résistant. En intégrant cette technique dans un projet de maison contemporaine, l’initiative rend hommage à cette tradition tout en y ajoutant des éléments de confort et de performance écologique propres à notre époque.
Le projet consiste en la réalisation d’une maison de 140 m², pensée pour une famille de quatre personnes. Les murs périphériques sont en pisé, isolés de l’intérieur avec des blocs de chanvre pour optimiser le confort thermique. La maison est dotée de menuiseries en bois, renforçant son aspect naturel, et d’une toiture végétalisée avec des débords, conçu pour protéger les murs en pisé de l’érosion. Ce choix de matériaux naturels et locaux garantit une intégration harmonieuse dans le paysage tout en favorisant une faible empreinte écologique.
MAISON TERRE





